Wohnung S4 im 1. Stock eines neuen Gebäudes in Kanfanar
278.400 €
- Kode : 27005
- Lage : Kanfanar
- Wohnfläche : 101.22 m2
- Grundstücksfläche : 0 m2
- Etage : 1
- Anzahl der Etagen : 3
- Anzahl der Zimmer : 3
- Anzahl der Badezimmer : 2
Vielleicht haben Sie Interesse?
Alle Immobilien KanfanarEIGENSCHAFTEN
- Entfernung zum Zentrum : 0 m
- Entfernung zum Meer : 0 m
- Parkplatz : Ja
- Klimaanlage : Ja
- Energieeffizien : A+
- Baujahr : 2023
BESCHREIBUNG
Wir verkaufen Wohnungen in einem Gebäude, dessen Bau im 9. Monat 2023 begonnen hat. Das Projekt besteht aus zwei miteinander verbundenen Gebäuden mit insgesamt 8 Wohnungen, 5 Wohnungen in einem und 3 im anderen Gebäude.
Die Gebäude liegen in einem ruhigen Teil von Kanfanar, umgeben von Luxusvillen abseits stark befahrener Straßen.
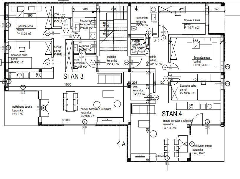
Die Dreizimmerwohnung S4 befindet sich im 1. Stock eines Gebäudes mit insgesamt 5 Wohnungen, Wohnfläche 101,22 m2 und besteht aus folgenden Räumen:
Flur - 11,58 m2
Badezimmer - 5,99 m2
Schlafzimmer 1 - 10,71 m2
Schlafzimmer 2 - 10,92 m2
Schlafzimmer 3 - 14,33 m2
WC - 1,62 m2
Zimmer/Speisekammer - 5,12 m2
Wohnzimmer+Küche+Esszimmer - 31,35 m2
überdachte Terrasse - 9,60 m2.
Zu jeder Wohnung gehört 1 Parkplatz.
Mit Ausnahme der Schlafzimmer und der Eingangshalle, wo hochwertige Vinyl-Bodenbeläge verlegt werden, ist in allen Räumen hochwertige Keramik vorhanden.
Baubeginn war Anfang Herbst 2023, die Fertigstellung ist für Ende 2024 geplant.
Wir nehmen Reservierungen entgegen!
+385 91 611 5706
azra@almadominvest.com
+385 98 420 885
HINWEIS: Wir beantworten keine möglichen Fehler in den Eigenschaftsbeschreibungen, wir möchten jedoch so genau und genau wie möglich sein.
