Verkauf - Modernes Apartment in einer neuen privaten Wohnanlage in Šijana, Pula! E-C
199.000 €
- Kode : 25530
- Lage : Pula
- Wohnfläche : 64.92 m2
- Grundstücksfläche : 0 m2
- Etage : 2
- Anzahl der Etagen : 3
- Anzahl der Zimmer : 2
- Anzahl der Badezimmer : 1
EIGENSCHAFTEN
- Entfernung zum Zentrum : 0 m
- Entfernung zum Meer : 0 m
- Parkplatz : Ja
- Klimaanlage : Ja
- Energieeffizien : A
- Baujahr : 2025
BESCHREIBUNG
Neu im Angebot!!!
Zum Verkauf steht eine moderne Wohnung, die sich an einem attraktiven Standort am Eingang von Pula in einem ruhigen und gepflegten Stadtteil befindet. Das Projekt umfasst sechs Wohngebäude mit insgesamt 24 Wohnungen, und der gesamte Komplex wird geschlossen und privat sein, ideal für ein ruhiges und sicheres Leben.
In unmittelbarer Nähe befinden sich alle wichtigen Einrichtungen – Schulen, Kindergärten, Einkaufszentren, öffentliche Verkehrsmittel sowie ein Parkwald, der sich perfekt für Spaziergänge, Freizeitaktivitäten und den Aufenthalt in der Natur eignet.
Der geplante Abschluss der Bauarbeiten ist im Frühjahr 2027, mit allen erforderlichen Genehmigungen und einer hochwirksamen Energiezertifizierung.
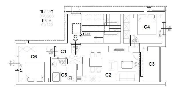
Die Wohnung E-C befindet sich im zweiten Stock des Gebäudes E und umfasst eine Gesamtfläche von 64,91 m², einschließlich Wohnbereich, Loggia, 2 Parkplätze und einem Abstellraum.
Der Wohnbereich von 55 m² besteht aus einem Wohnzimmer mit Küche und Essbereich, zwei Schlafzimmern, einem Badezimmer, einem Flur und einer Loggia, die einen angenehmen Raum zum Entspannen bietet.
Zur Wohnung gehören 2 Parkplätze und ein Abstellraum im Erdgeschoss des Gebäudes.
Besonderes Augenmerk wurde auf die Bauqualität und die abschließenden Details gelegt.
Baumerkmale:
Die Wohnungen haben die Energieklasse A/A+, mit einer Wärmedämmung von 10 cm, einbruchhemmenden Eingangstüren, PVC-Fenstern mit Isolierverglasung und Rollläden sowie moderner Keramik in allen Räumen.
Auf den Loggien ist rutschfeste Keramik verlegt, während im Wohnzimmer, in der Küche und im Badezimmer Klimaanlagen und elektrische Fußbodenheizungen vorgesehen sind.
In den Badezimmern sind auch elektrische Heizkörper mit Handtuchhaltern und Thermostaten eingebaut.
Die Umgebung des Gebäudes wird mit Liebe zum Detail gestaltet – Grünflächen mit einheimischen Pflanzen, Rasen mit automatischer Bewässerung, gepflasterte Wege und LED-Beleuchtung mit Bewegungsmeldern schaffen eine angenehme und sichere Atmosphäre.
Dieser Stadtteil zeichnet sich durch eine hervorragende Verkehrsanbindung, schnelle Erreichbarkeit des Zentrums von Pula und aller wichtigen Verkehrswege aus.
Diese Immobilie ist ideal für das Familienleben oder als Investition in hochwertigen Neubau.
Für weitere Informationen und zur Besichtigung der Wohnung kontaktieren Sie bitte:
Azra
+385 91 611 5706
+385 98 420 885
azra@almadominvest.com
HINWEIS: Wir beantworten keine möglichen Fehler in den Eigenschaftsbeschreibungen, wir möchten jedoch so genau und genau wie möglich sein.
