Neues Wohnprojekt im Bau! Pula, Valdebek!
279.200 €
- Kode : 25027
- Lage : Pula
- Wohnfläche : 93.08 m2
- Grundstücksfläche : 0 m2
- Etage : 1
- Anzahl der Etagen : 3
- Anzahl der Zimmer : 3
- Anzahl der Badezimmer : 1
EIGENSCHAFTEN
- Entfernung zum Zentrum : 3000 m
- Entfernung zum Meer : 2400 m
- Parkplatz : Ja
- Klimaanlage : Ja
- Energieeffizien : Nicht bekannt
- Baujahr : 2025
BESCHREIBUNG
Die neue Wohnanlage besteht aus 2 zweigeschossigen Wohnhäusern mit jeweils nur 4 Wohnungen.
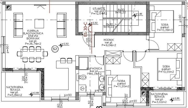
Die Wohnung S2 befindet sich im 1. Stock des Gebäudes B und besteht aus einem Flur, einem Badezimmer, einem geräumigen Wohnzimmer mit Küche und Esszimmer, 3 Schlafzimmern und einer Terrasse.
Zur Wohnung gehört ein Parkplatz, der zusätzlich bezahlt wird.
Optional besteht die Möglichkeit, einen Abstellraum und einen zusätzlichen Garagenstellplatz zu erwerben. Der Preis für einen Parkplatz beträgt 9.000 Euro, für einen Garagenplatz 15.000 Euro.
Die geplante Fertigstellung der Bauarbeiten ist Ende Sommer 2025.
Für weitere Informationen stehen wir Ihnen gerne zur Verfügung:
Azra
+385 91 611 5706
+385 98 420 885
azra@almadominvest.com
HINWEIS: Wir beantworten keine möglichen Fehler in den Eigenschaftsbeschreibungen, wir möchten jedoch so genau und genau wie möglich sein.
