Haus Kanfanar
550.000 €
- Kode : 26491
- Lage : Kanfanar
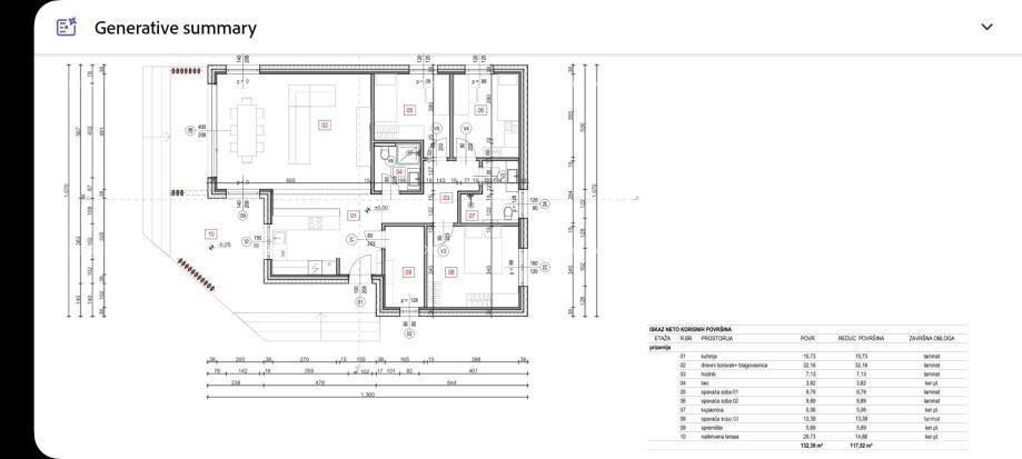
- Wohnfläche : 134 m2
- Grundstücksfläche : 719 m2
- Anzahl der Etagen : 2
- Anzahl der Zimmer : 3
- Anzahl der Badezimmer : 2
Vielleicht haben Sie Interesse?
Alle Immobilien KanfanarEIGENSCHAFTEN
- Entfernung zum Zentrum : 0 m
- Entfernung zum Meer : 0 m
- Parkplatz : Ja
- Klimaanlage : Ja
- Energieeffizien : A+
- Baujahr : 2022
BESCHREIBUNG
Zum Verkauf steht ein moderner und hochwertiger Neubau, ein einstöckiges Haus im Open Space Stil in hervorragender und ruhiger Lage, Kanfanar.
Auf einem großzügigen Baugrundstück, umgeben von nur wenigen Häusern und Natur.
Das Erdgeschoss besteht aus einer offenen Küche und einem Wohnzimmer mit Zugang zu einer überdachten Terrasse, einem Maschinenraum/Abstellraum, 2 Badezimmern mit Toiletten und 3 Schlafzimmern. Fußbodenheizung über Wärmepumpe im gesamten Haus und Klimaanlage zur Kühlung.
Details:
Einbruchsichere Türen
Video-Türsprechanlage
Fußbodenheizung
Elektrische Jalousien.
Entfernung von Rovinj nur 8 km.
Für weitere Informationen stehen wir Ihnen gerne zur Verfügung:
Azra
+385 91 611 5706
+385 98 420 885
azra@almadominvest.com
HINWEIS: Wir beantworten keine möglichen Fehler in den Eigenschaftsbeschreibungen, wir möchten jedoch so genau und genau wie möglich sein.
