Grundstück mit Baugenehmigung und bezahlten Nebenkosten in Gočan
110.000 €
- Kode : 25438
- Lage : Barban
- Wohnfläche : 0 m2
- Grundstücksfläche : 784 m2
Vielleicht haben Sie Interesse?
Alle Immobilien BarbanEIGENSCHAFTEN
- Entfernung zum Zentrum : 0 m
- Entfernung zum Meer : 0 m
BESCHREIBUNG
Wir verkaufen ein Baugrundstück von 784m2 mit Baugenehmigung für den Bau eines Einfamilienhauses. Die Nebenkosten sind bezahlt. Das Grundstück liegt in wunderschöner Natur, umgeben von viel Grün.
Das Grundstück verfügt über eine gepflegte, asphaltierte Zufahrtsstraße.
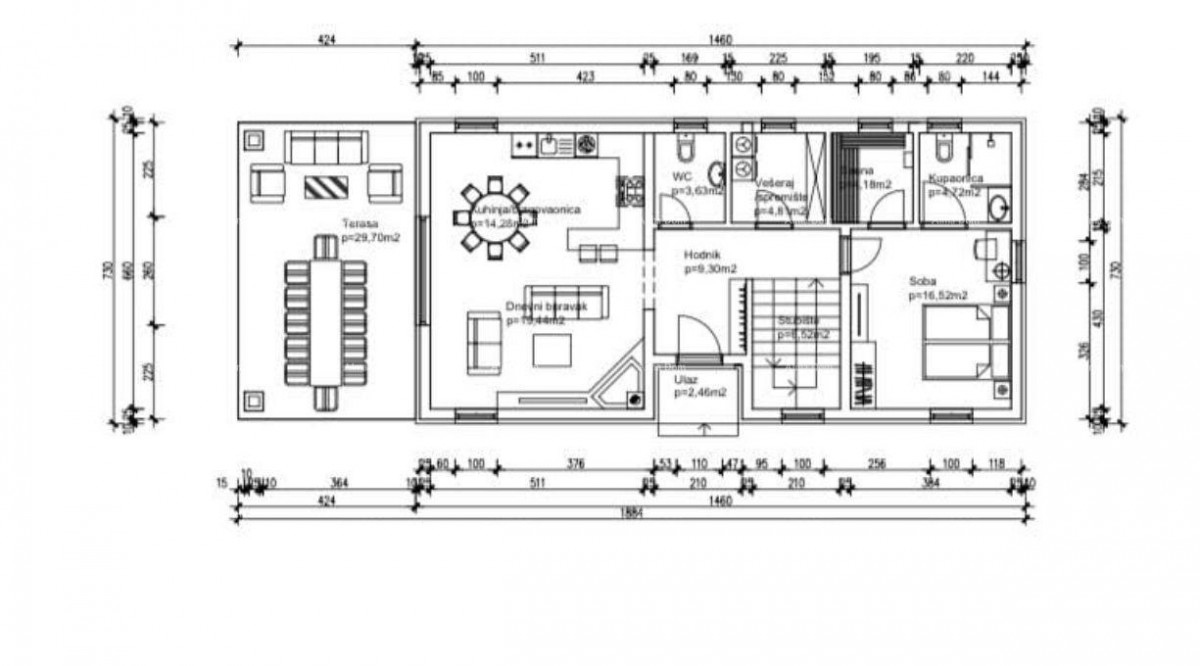
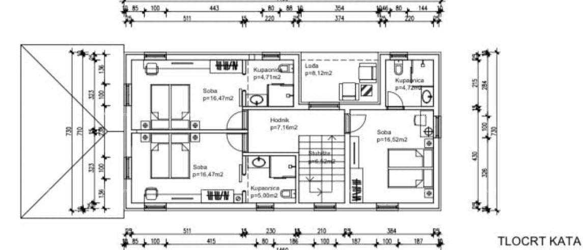
Auf diesem Grundstück soll laut Projekt ein zweistöckiges Haus entstehen, bestehend aus einem überdachten Eingang, Flur, Treppenhaus, Küche mit Esszimmer, Wohnzimmer, Schlafzimmer mit Bad, separater Toilette, Sauna, Waschküche und einer großzügigen überdachten Terrasse im Erdgeschoss. Das Obergeschoss des Hauses würde aus einer Diele, drei Schlafzimmern mit jeweils eigenem Bad und einer Loggia bestehen. Auf dem Grundstück soll es einen Swimmingpool und 2 Parkplätze geben.
Die Eigentumsverhältnisse sind ordentlich 1/1.
Preis 110.000 + MwSt
Azra Valjevac
+385 91 611 5706
+385 98 420 885
azra@almadominvest.com
HINWEIS: Wir beantworten keine möglichen Fehler in den Eigenschaftsbeschreibungen, wir möchten jedoch so genau und genau wie möglich sein.
