Grundstück Kanfanar
89.000 €
- Kode : 27165
- Lage : Kanfanar
- Wohnfläche : 0 m2
- Grundstücksfläche : 615 m2
Vielleicht haben Sie Interesse?
Alle Immobilien KanfanarEIGENSCHAFTEN
- Entfernung zum Zentrum : 0 m
- Entfernung zum Meer : 0 m
BESCHREIBUNG
Bauland zum Verkauf mit Meerblick, in der Nähe von Kanfanar.
Das Land hat eine regelmäßige Form. Sämtliche notwendige Infrastruktur (Wasser, Strom, Abwasser) in unmittelbarer Nähe.
Das Grundstück verfügt über eine asphaltierte Zufahrtsstraße.
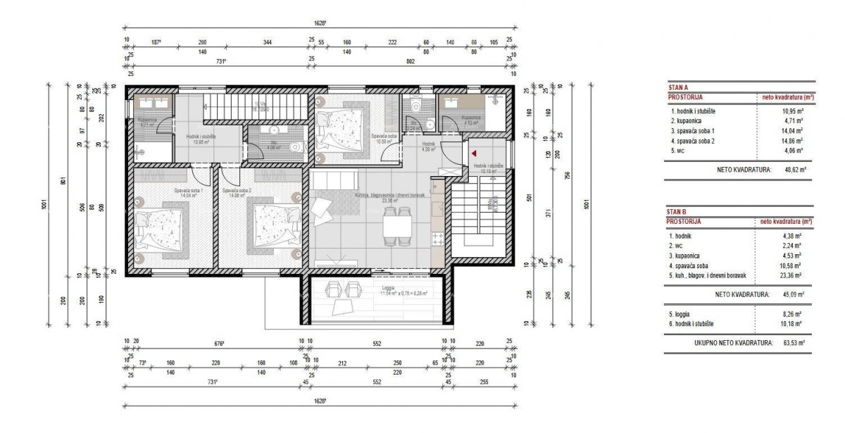
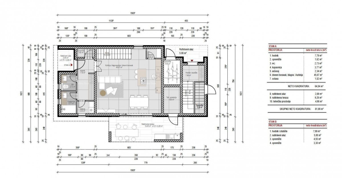
Für ein Wohngebäude und ein Nebengebäude wurde eine Baugenehmigung eingeholt.
Die Möglichkeit, sofort zu bauen.
18 km von Rovinj entfernt.
Für weitere Informationen wenden Sie sich bitte an:
Azra
+385 91 611 5706
+385 98 420 885
azra@almadominvest.com
HINWEIS: Wir beantworten keine möglichen Fehler in den Eigenschaftsbeschreibungen, wir möchten jedoch so genau und genau wie möglich sein.
